24/7 HOTLINE  |  
Sydney 02 9832 1044  |  
Botany 02 9666 6366  |  
Kingswood 02 9832 1044  |  
Newcastle 02 4961 3002  |  
Singleton 02 5504 5525  |  
Muswellbrook 02 5542 0077
 |  
Central Coast 02 4346 4262  |  
Gold Coast 07 5588 5158  |  
Brisbane 07 3333 5513  |  
Toowoomba 07 4595 1785  |  
Sunshine Coast 07 5445 4900  |  
Gympie 07 5408 4060

Logo

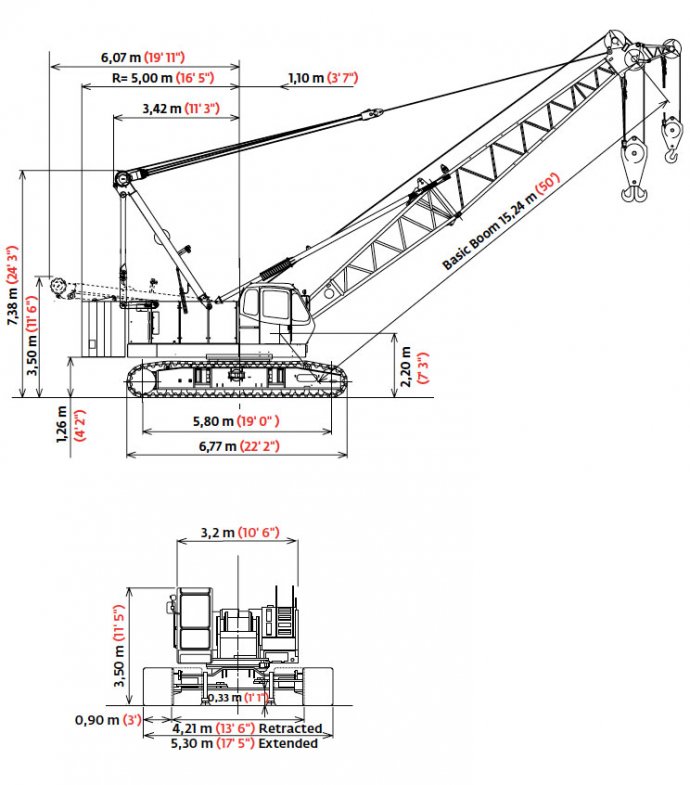
Unit CC120 - Manitowoc 12000-1 - Crawler Crane - 110 ton

home / crane fleet / 110t Manitowoc 12000-1

This reliable crawler crane is simple to operate & easy to setup.

This crawler crane can be out fitted with a boom & fixed jib or a luffing boom & jib.

Boom Size 15.24m - 70.1m
With fixed jib 9.1m to 21.3m available
With luffing boom & jib 18.3m to 94.5m
Max tip height: 94.5m
Running Gear crawlers with extendible axles
Length 9.455m
Width 5.3m
Height 7.38m
Outrigger Footprint: 6.77m x 5.3m - 4 point support
Counterweight: up to 34 tons